$309,500
Call Now: (501) 884-4663
Remarks
Charming 3 bedroom, 2 bathroom home situated on 6.99 acres just minutes from Mountain Home, Norfork Lake, and the White River. Home features a bright sunroom, spacious deck, and an attached 2-car garage. A large barn/shop on the property provides excellent space for storage, hobbies, or workspace. Perfect for those seeking peaceful country living with easy access to outdoor recreation.
Rooms
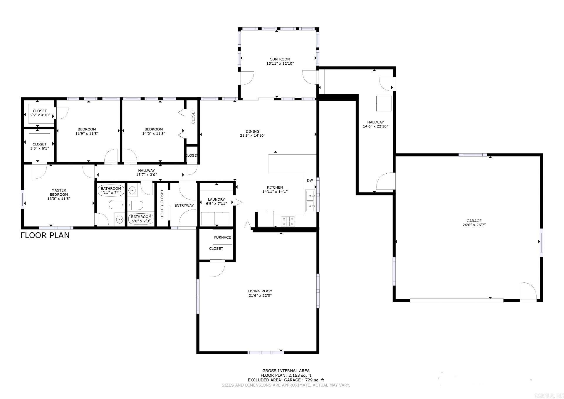
Other Rooms: Sun Room
Other Room 1: Sun Room
Other Room 2: Full Bath
Other Room 3: Master Bath
Other Room 4: Garage
Room Sizes
Dining Room: 21'5x14'10
Master Bedroom: 13'x11'5
Utility Room: 6'9x7'11
Bedroom 2: 14'x11'5
Bedroom 3: 11'9x11'5
Kitchen: 14'11x14'1
Living Room: 22'x21'6
Other Room 1: 13'11x12'1
Other Room 2: 5'x7'9
Other Room 3: 4'11x7'4
Other Room 4: 26'6x26'7
Features
Deck
Washer Connection
Washer-Stays
Dryer Connection-Electric
Dryer-Stays
Water Heater-Electric
Ceiling Fan(s)
Kit Counter-Other
Map
This data up-to-date as of December 16, 2025 time - 07:02 AM. For the most current information, contact Landry Greers Ferry Lake Realty, (501) 884-4663, tammy@landrylakerealty.com. This data is updated daily. Some properties which appear for sale on this web site may subsequently have sold and may no longer be available.
The data relating to real estate for sale on this web site comes in part from the Broker Reciprocity (SM) Program of the Cooperative Arkansas REALTORS® Multiple Listing Services, Inc. Real estate listings held by brokerage firms other than Studio 11 Productions are marked with the Broker Reciprocity (SM) logo and information about them includes the name of the listing brokers. Broker Reciprocity (SM) information is provided exclusively for consumers' personal, non-commercial use and may not be used for any purpose other than to identify prospective properties consumers may be interested in purchasing.
Information deemed reliable but not guaranteed. Listing broker has attempted to offer accurate data, but buyers are advised to confirm all items.
Copyright © 2002 - 2025 Cooperative Arkansas REALTORS® Multiple Listing Services, Inc. All rights reserved.
