$299,000
Call Now: (501) 884-4663
Remarks
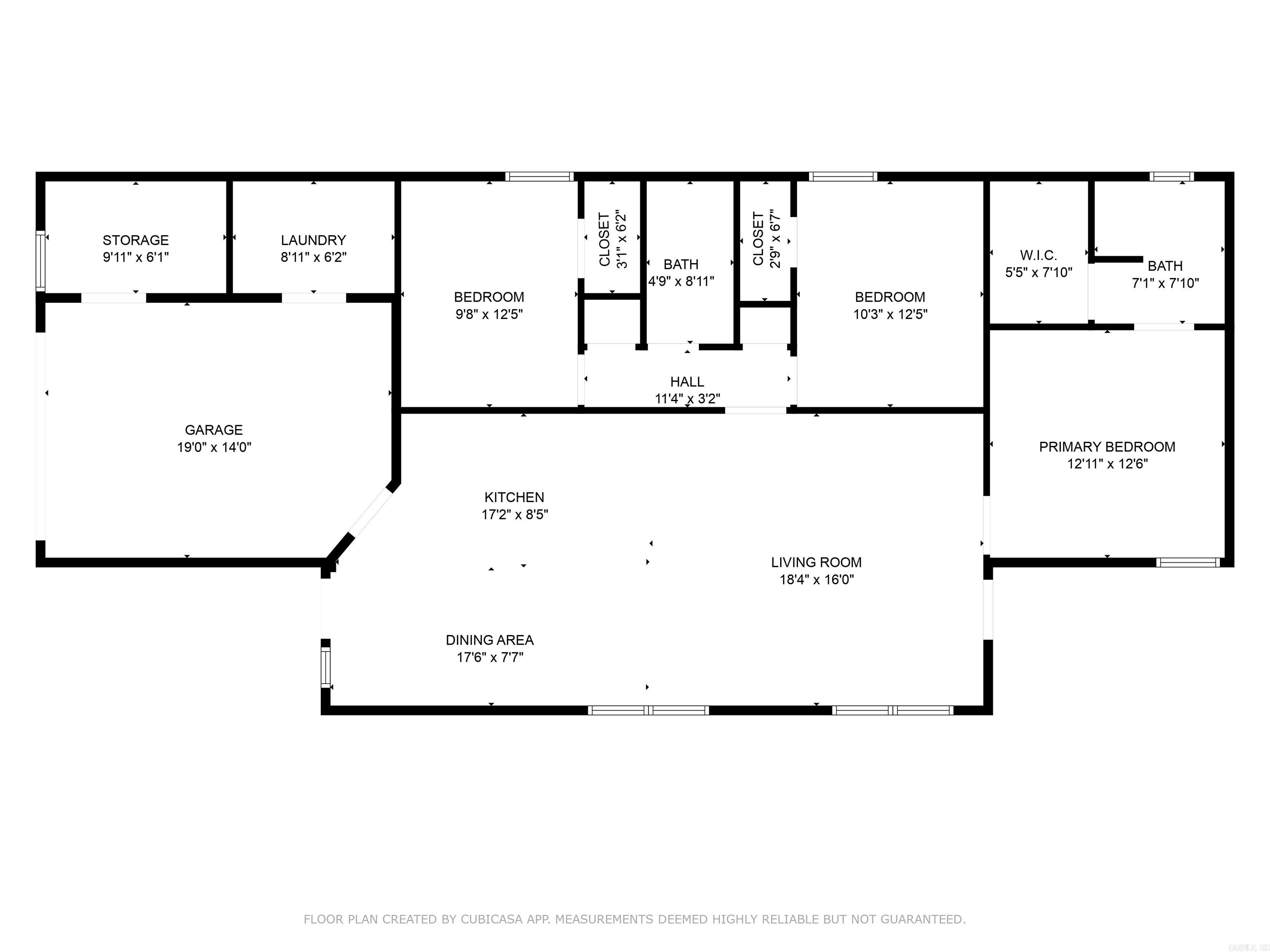
Beautiful new construction home sitting on 1.21 ac in the desirable Timber Ridge subdivision in Mena! The charming brick floor of the front porch welcomes you in to this 3 bedroom, 2 bath home featuring 1,490 sq ft of thoughtfully designed living space. Inside, you’ll find luxury vinyl plank flooring throughout, solid wood cabinetry, and gorgeous granite countertops in the kitchen and baths. The primary suite features a custom tiled shower for a spa-like feel and a large walk-in closet. Extras include a spacious laundry room and additional storage room off the garage. Outdoors, enjoy the covered back porch with a scenic view looking down the valley. Sitting on 3 lots, this property provides extra space for relaxing, entertaining, or gardening. A perfect blend of quality craftsmanship and modern finishes—ready for you to call home! Conveniently located just 1.2 miles to Walmart Super Center, 1/4 miles to downtown Mena street shopping and art district, 1.7 miles to Mena Regional hospital, 2.9 miles to the Trails at Mena mt bike trails!
Features
Deck
Porch
Guttering
Washer Connection
Dryer Connection-Electric
Water Heater-Electric
Walk-In Closet(s)
Ceiling Fan(s)
Walk-in Shower
Breakfast Bar
Kit Counter- Granite Slab
Low-E Windows
High Efficiency HVAC>14
Programmable Thermostat
Map
This data up-to-date as of December 17, 2025 time - 03:35 AM. For the most current information, contact Landry Greers Ferry Lake Realty, (501) 884-4663, tammy@landrylakerealty.com. This data is updated daily. Some properties which appear for sale on this web site may subsequently have sold and may no longer be available.
The data relating to real estate for sale on this web site comes in part from the Broker Reciprocity (SM) Program of the Cooperative Arkansas REALTORS® Multiple Listing Services, Inc. Real estate listings held by brokerage firms other than Studio 11 Productions are marked with the Broker Reciprocity (SM) logo and information about them includes the name of the listing brokers. Broker Reciprocity (SM) information is provided exclusively for consumers' personal, non-commercial use and may not be used for any purpose other than to identify prospective properties consumers may be interested in purchasing.
Information deemed reliable but not guaranteed. Listing broker has attempted to offer accurate data, but buyers are advised to confirm all items.
Copyright © 2002 - 2025 Cooperative Arkansas REALTORS® Multiple Listing Services, Inc. All rights reserved.
