$329,500
Call Now: (501) 884-4663
Remarks
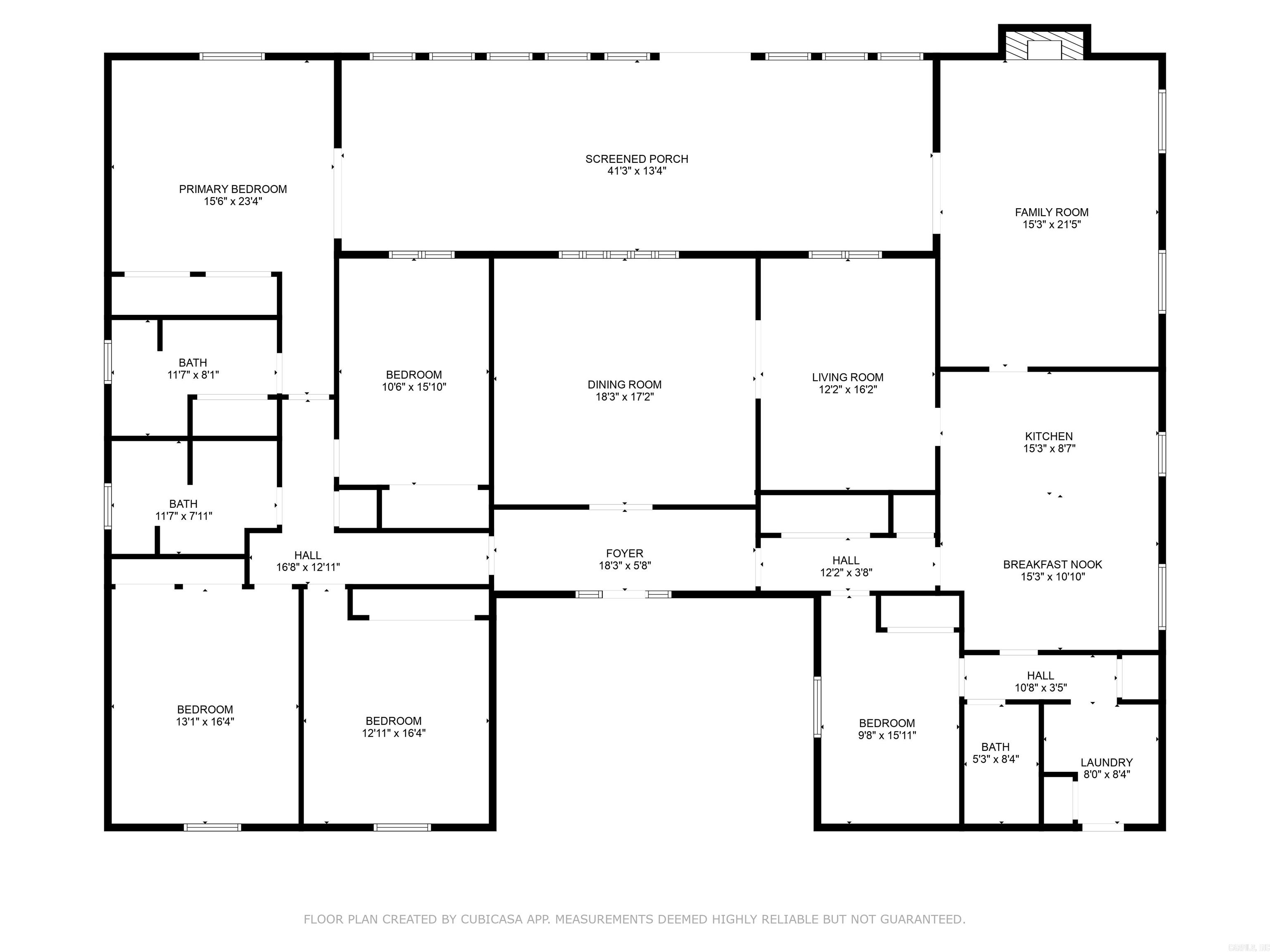
Nestled among rolling hills and open skies, this one-of-a-kind well-built and well-maintained property offers space to roam room to grow. Step inside the heart of the home, where a spacious kitchen awaits—fully equipped with generous storage, ample counter space, and a layout built for both quiet family mornings and large gatherings. Adjacent to the kitchen, a light-filled 550 sq ft sunroom becomes your personal sanctuary—seamlessly connecting the den and the primary bedroom, it's the ideal spot to sip coffee at sunrise or unwind as the sun sets. With 5 total bedrooms, including a flex room on one side of the house, complete with its own bathroom, this home offers incredible versatility, perfect as a home office, guest suite, or craft room. Sitting on 9 peaceful acres with mature trees and open land, there is a storage barn as well as two large slab-floored shops. When it’s time to relax, head outside to your in-ground pool, perfect for warm summer days and entertaining under the stars. Whether you're looking for a peaceful place to call home or a rural getaway that still offers comfort and space, this property delivers on both!
Features
Partially Fenced
Outside Storage Area
Inground Pool
Shop
Enclosed Pool
Wood Fence
Washer Connection
Dryer Connection-Electric
Water Heater-Gas
Ceiling Fan(s)
Kit Counter-Ceramic Tile
Map
This data up-to-date as of December 18, 2025 time - 11:29 PM. For the most current information, contact Landry Greers Ferry Lake Realty, (501) 884-4663, tammy@landrylakerealty.com. This data is updated daily. Some properties which appear for sale on this web site may subsequently have sold and may no longer be available.
The data relating to real estate for sale on this web site comes in part from the Broker Reciprocity (SM) Program of the Cooperative Arkansas REALTORS® Multiple Listing Services, Inc. Real estate listings held by brokerage firms other than Studio 11 Productions are marked with the Broker Reciprocity (SM) logo and information about them includes the name of the listing brokers. Broker Reciprocity (SM) information is provided exclusively for consumers' personal, non-commercial use and may not be used for any purpose other than to identify prospective properties consumers may be interested in purchasing.
Information deemed reliable but not guaranteed. Listing broker has attempted to offer accurate data, but buyers are advised to confirm all items.
Copyright © 2002 - 2025 Cooperative Arkansas REALTORS® Multiple Listing Services, Inc. All rights reserved.
