$340,000
Call Now: (501) 884-4663
Remarks
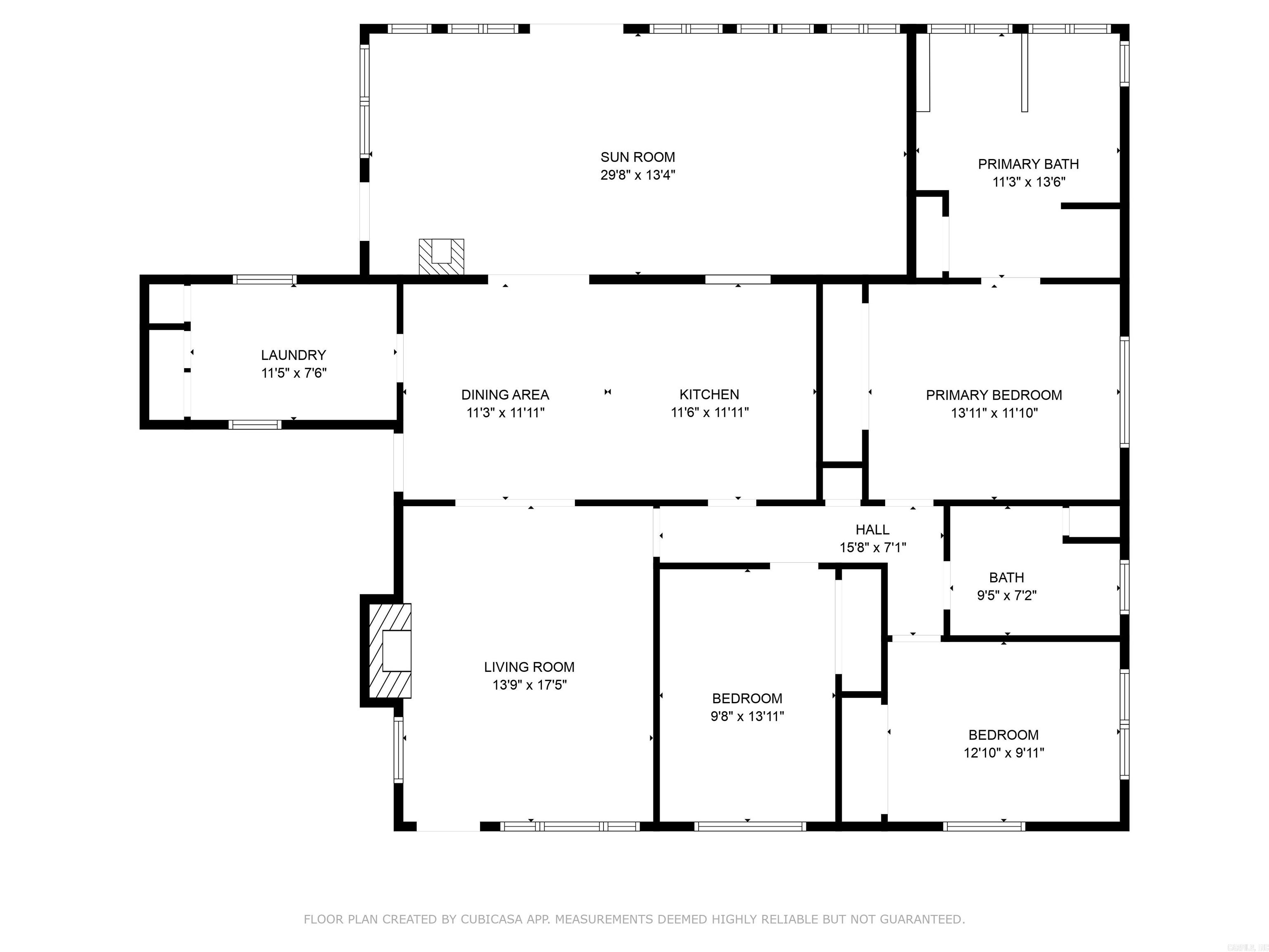
Discover this 1900 sq foot work in progress, three-bedroom, two-bath home nestled on scenic rolling acres near the stunning Ouachita National Forest. Enjoy breathtaking mountain views, mature hardwood trees, and abundant wildlife. The property features a spring-fed pond and year-round creek, perfect for outdoor activities and relaxation. The home boasts original hardwood floors in some rooms and has renovations and upgrades underway , offering you the opportunity to add your personal touch. Fully fenced for privacy and or livestock, this peaceful retreat is also Wolf Pen Gap ATV accessible and just minutes from Mena. A perfect blend of nature, tranquility, and potential—schedule your showing today!
Features
Deck
Porch
Fully Fenced
Outside Storage Area
Washer Connection
Dryer Connection-Electric
Ceiling Fan(s)
Walk-in Shower
Kit Counter-Formica
Map
This data up-to-date as of December 21, 2025 time - 08:54 AM. For the most current information, contact Landry Greers Ferry Lake Realty, (501) 884-4663, tammy@landrylakerealty.com. This data is updated daily. Some properties which appear for sale on this web site may subsequently have sold and may no longer be available.
The data relating to real estate for sale on this web site comes in part from the Broker Reciprocity (SM) Program of the Cooperative Arkansas REALTORS® Multiple Listing Services, Inc. Real estate listings held by brokerage firms other than Studio 11 Productions are marked with the Broker Reciprocity (SM) logo and information about them includes the name of the listing brokers. Broker Reciprocity (SM) information is provided exclusively for consumers' personal, non-commercial use and may not be used for any purpose other than to identify prospective properties consumers may be interested in purchasing.
Information deemed reliable but not guaranteed. Listing broker has attempted to offer accurate data, but buyers are advised to confirm all items.
Copyright © 2002 - 2025 Cooperative Arkansas REALTORS® Multiple Listing Services, Inc. All rights reserved.
