$434,000
Call Now: (501) 884-4663
Remarks
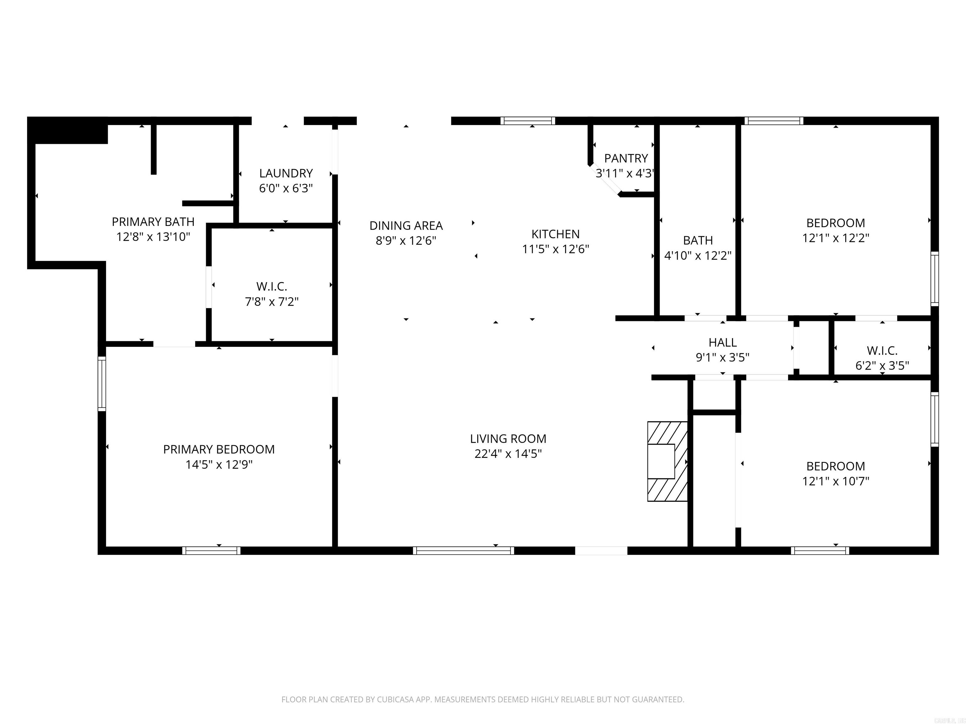
This home has 1,797 sq. ft. of total living space, including a 1,557 sq. ft. main house featuring 3 bedrooms and 2 bathrooms. The open floor plan has vaulted ceilings with rich wood finishes, a beautiful stone fireplace, and brand-new flooring throughout. The kitchen offers stainless steel appliances, beautiful wood cabinetry, and plenty of counter space. Relax on the back porch while enjoying the peaceful view of your very own koi pond with a waterfall, surrounded by trees and nature. This property sits on 6.3 acres, giving you room to spread out and enjoy country living while still being close to town. In addition to the main home, there’s a 2-car carport with a finished 240 sq. ft. bonus space that includes two rooms and a half bath. This flexible area would make a great mother-in-law suite, office, craft room, or guest quarters. A storage shed is also included. The whole house generator gives you peace of mind. If you’ve been looking for a move-in ready home with charm, privacy, and acreage, this one checks all the boxes!
Features
Patio
Partially Fenced
Chain Link
Washer Connection
Washer-Stays
Dryer Connection-Electric
Dryer-Stays
Water Heater-Gas
Walk-In Closet(s)
Ceiling Fan(s)
Walk-in Shower
Breakfast Bar
Kit Counter- Granite Slab
Map
This data up-to-date as of December 14, 2025 time - 04:33 AM. For the most current information, contact Landry Greers Ferry Lake Realty, (501) 884-4663, tammy@landrylakerealty.com. This data is updated daily. Some properties which appear for sale on this web site may subsequently have sold and may no longer be available.
The data relating to real estate for sale on this web site comes in part from the Broker Reciprocity (SM) Program of the Cooperative Arkansas REALTORS® Multiple Listing Services, Inc. Real estate listings held by brokerage firms other than Studio 11 Productions are marked with the Broker Reciprocity (SM) logo and information about them includes the name of the listing brokers. Broker Reciprocity (SM) information is provided exclusively for consumers' personal, non-commercial use and may not be used for any purpose other than to identify prospective properties consumers may be interested in purchasing.
Information deemed reliable but not guaranteed. Listing broker has attempted to offer accurate data, but buyers are advised to confirm all items.
Copyright © 2002 - 2025 Cooperative Arkansas REALTORS® Multiple Listing Services, Inc. All rights reserved.
