$338,000
Call Now: (501) 884-4663
Remarks
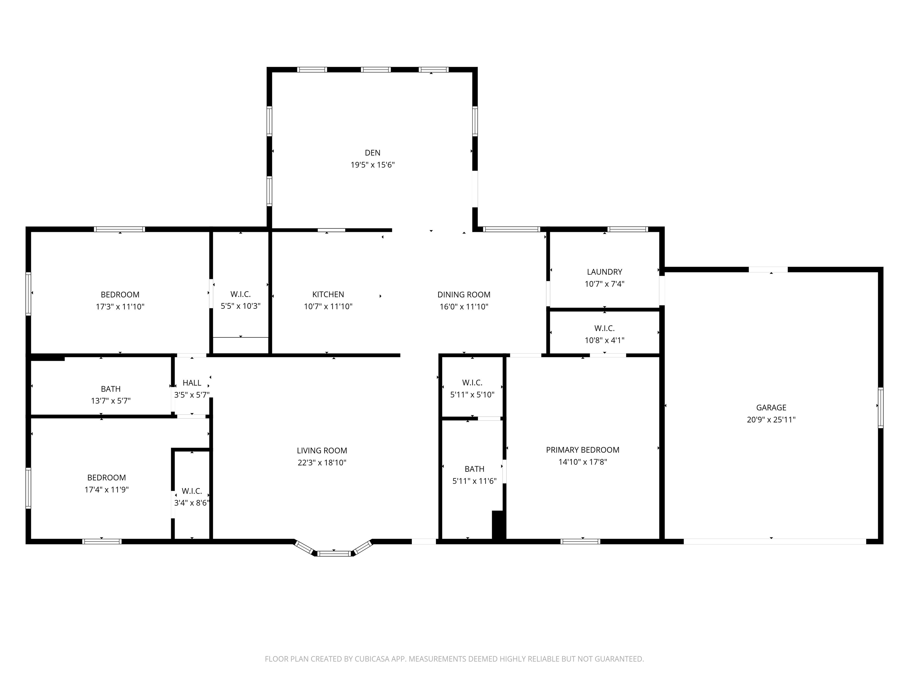
Spacious 3-bedroom, 2-bath home offering 2,266 sq ft in a peaceful country setting with convenient access to Central Arkansas attractions. Inside features a large living area, cozy den ideal for gatherings, and a functional kitchen with ample storage. The primary suite provides comfort and privacy, while additional bedrooms are perfect for guests or a home office. Enjoy outdoor living from the 12x24 detached screened porch. Property also includes a 2-car garage, storm safe room, pole barn, and a large shop—ideal for storage, hobbies, or projects. Located just 18 miles from Hot Springs, 16 miles from Arkadelphia, and 7 miles from Lake Hamilton, with DeGray Lake nearby. A great blend of country living, space, and convenience.
Rooms
Other Rooms: Den/Family Room | Workshop/Craft | Laundry | Safe/Storm Room
Room Sizes
Dining Room: 16'x11'
Master Bedroom: 14'x17'
Den: 19'x15'
Utility Room: 10'x7'
Bedroom 2: 17'x11'
Bedroom 3: 17'x11'
Kitchen: 10'x11'
Living Room: 22'x18'
Features
Screened Porch
Partially Fenced
Outside Storage Area
Guttering
Storm Cellar
Shop
Wheelchair Accessible
Map
This data up-to-date as of December 21, 2025 time - 03:14 PM. For the most current information, contact Landry Greers Ferry Lake Realty, (501) 884-4663, tammy@landrylakerealty.com. This data is updated daily. Some properties which appear for sale on this web site may subsequently have sold and may no longer be available.
The data relating to real estate for sale on this web site comes in part from the Broker Reciprocity (SM) Program of the Cooperative Arkansas REALTORS® Multiple Listing Services, Inc. Real estate listings held by brokerage firms other than Studio 11 Productions are marked with the Broker Reciprocity (SM) logo and information about them includes the name of the listing brokers. Broker Reciprocity (SM) information is provided exclusively for consumers' personal, non-commercial use and may not be used for any purpose other than to identify prospective properties consumers may be interested in purchasing.
Information deemed reliable but not guaranteed. Listing broker has attempted to offer accurate data, but buyers are advised to confirm all items.
Copyright © 2002 - 2025 Cooperative Arkansas REALTORS® Multiple Listing Services, Inc. All rights reserved.
