$354,900
Call Now: (501) 884-4663
Remarks
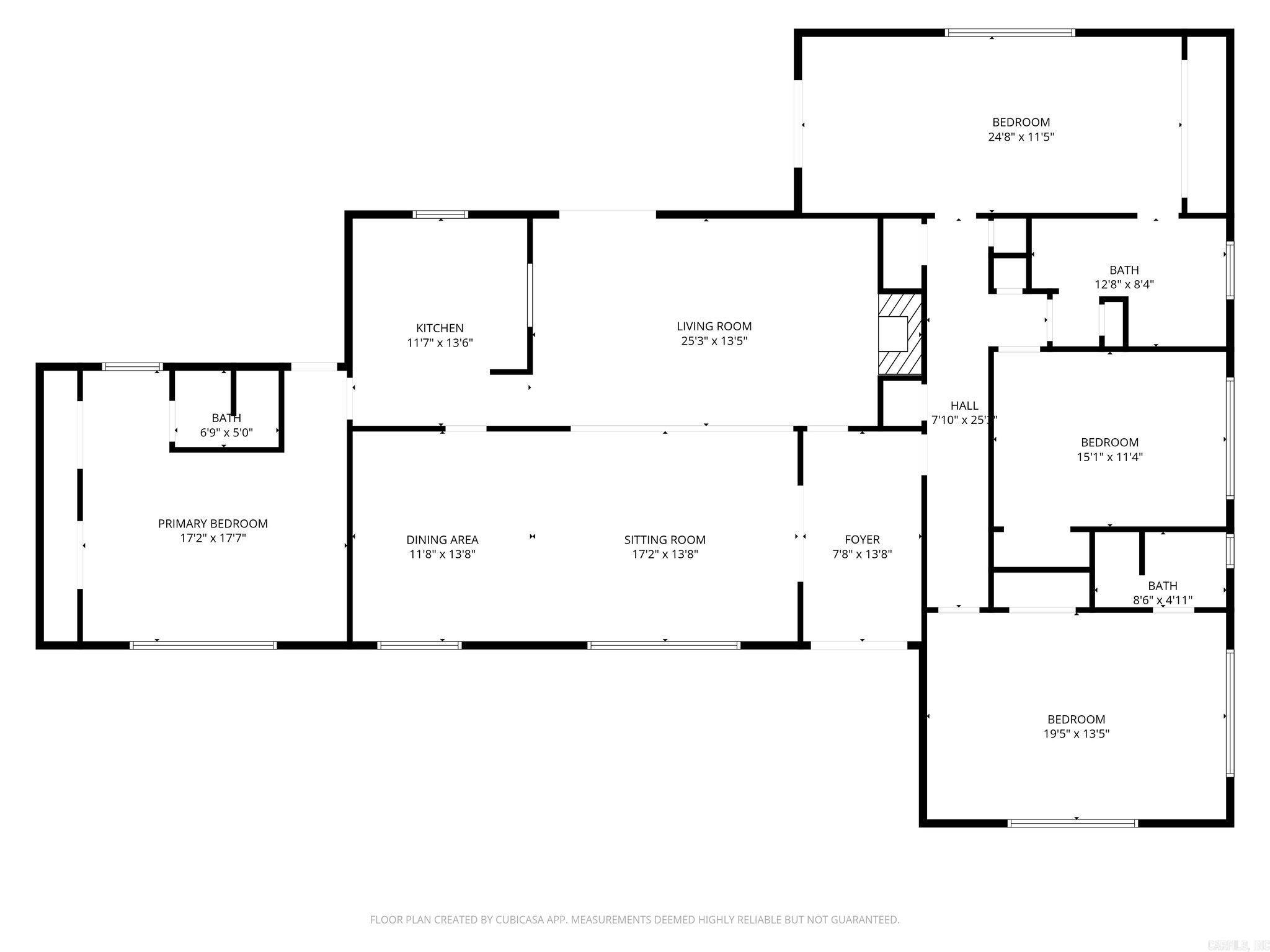
Come discover this beautifully maintained mid-century gem perched atop Cherry Hill! This single-level brick home features 4 bedrooms-3 of which could be considered Master bedrooms and one as an In-Law Suite, also there are 3 full Bathrooms! Most of the home has Luxury vinyl plank flooring throughout and offers a warm, inviting layout perfect for family living and entertaining. Enjoy a well-manicured lawn, private walled backyard, and covered carport with wrought iron gate for added security and charm. All window treatments, washer, dryer, and refrigerator will convey. Sellers are relocating and motivated to sell—don’t miss your chance to own this classic, conveniently located North Little Rock beauty!
Features
Map
This data up-to-date as of December 19, 2025 time - 08:48 PM. For the most current information, contact Landry Greers Ferry Lake Realty, (501) 884-4663, tammy@landrylakerealty.com. This data is updated daily. Some properties which appear for sale on this web site may subsequently have sold and may no longer be available.
The data relating to real estate for sale on this web site comes in part from the Broker Reciprocity (SM) Program of the Cooperative Arkansas REALTORS® Multiple Listing Services, Inc. Real estate listings held by brokerage firms other than Studio 11 Productions are marked with the Broker Reciprocity (SM) logo and information about them includes the name of the listing brokers. Broker Reciprocity (SM) information is provided exclusively for consumers' personal, non-commercial use and may not be used for any purpose other than to identify prospective properties consumers may be interested in purchasing.
Information deemed reliable but not guaranteed. Listing broker has attempted to offer accurate data, but buyers are advised to confirm all items.
Copyright © 2002 - 2025 Cooperative Arkansas REALTORS® Multiple Listing Services, Inc. All rights reserved.
