$267,900
Call Now: (501) 884-4663
Remarks
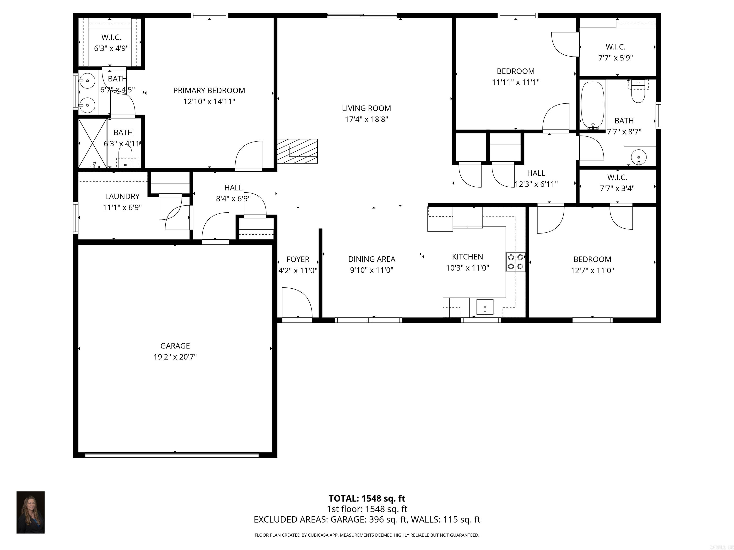
This beautifully updated, move-in ready home sits on just over half an acre in one of Mena's desirable neighborhoods. Step inside to find a bright, open floor plan centered around a stunning see-through fireplace that connects the living & dining areas, perfect for cozy evenings or entertaining guests. Updated kitchen showcasing granite countertops, stone backsplash, stainless steel appliances including a gas range/double oven combo, microwave & fridge. Primary suite features a low-threshold step-in shower. Guest bath features an extra-deep soaking tub. Both bathrooms tastefully remodeled with granite countertops & contemporary fixtures. Upgrades include a new roof (2024) & a Lennox super high-efficiency heat pump, ensuring comfort & energy savings year-round. Enjoy peaceful mornings & relaxing evenings on the covered patio overlooking the spacious, fully fenced backyard where wildlife frequent! Attached two car garage with built-ins. Cement slab w/covered (16x30) parking. She-shed w/small wood stove. Shop has electric, heat & air. In addition to city water, the property offers a water well, great for watering the raised garden beds, flowering trees & pretty landscaping.
Features
Patio
Porch
Partially Fenced
Outside Storage Area
Guttering
Shop
RV Parking
Chain Link
Washer Connection
Dryer Connection-Electric
Water Heater-Electric
Window Treatments
Walk-In Closet(s)
Built-Ins
Ceiling Fan(s)
Walk-in Shower
Breakfast Bar
Kit Counter- Granite Slab
Low-E Windows
This data up-to-date as of December 14, 2025 time - 04:27 AM. For the most current information, contact Landry Greers Ferry Lake Realty, (501) 884-4663, tammy@landrylakerealty.com. This data is updated daily. Some properties which appear for sale on this web site may subsequently have sold and may no longer be available.
The data relating to real estate for sale on this web site comes in part from the Broker Reciprocity (SM) Program of the Cooperative Arkansas REALTORS® Multiple Listing Services, Inc. Real estate listings held by brokerage firms other than Studio 11 Productions are marked with the Broker Reciprocity (SM) logo and information about them includes the name of the listing brokers. Broker Reciprocity (SM) information is provided exclusively for consumers' personal, non-commercial use and may not be used for any purpose other than to identify prospective properties consumers may be interested in purchasing.
Information deemed reliable but not guaranteed. Listing broker has attempted to offer accurate data, but buyers are advised to confirm all items.
Copyright © 2002 - 2025 Cooperative Arkansas REALTORS® Multiple Listing Services, Inc. All rights reserved.
