$495,000
Call Now: (501) 884-4663
Remarks
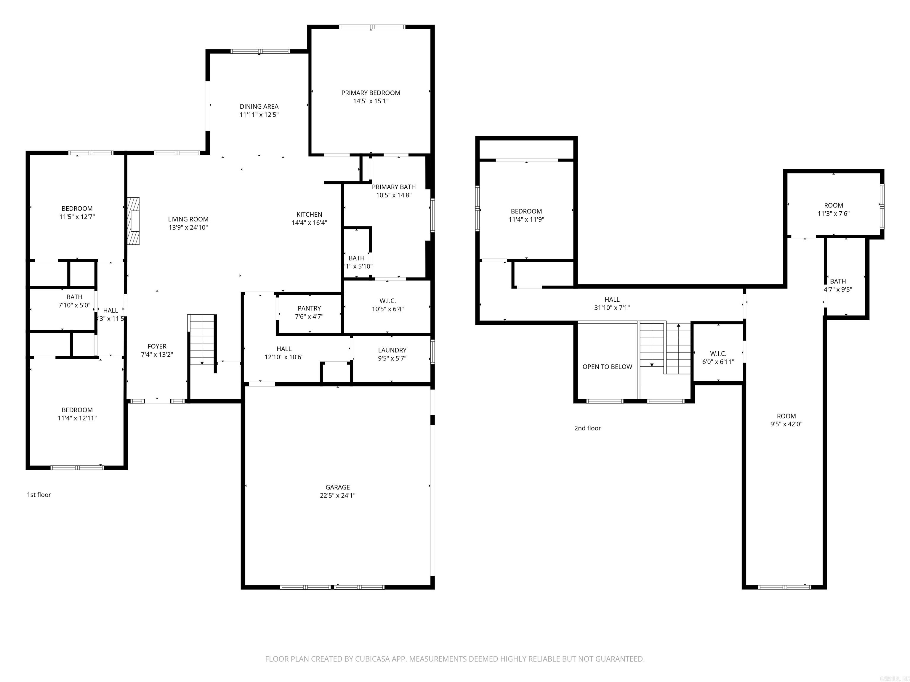
Welcome to your dream home at 168 Pico Circle in Hot Springs, Arkansas. This stunning new construction features four spacious bedrooms and three full baths, accompanied by a versatile bonus den and dedicated office space, perfect for modern living. The open-concept design seamlessly connects the living area and kitchen, creating an inviting space ideal for entertaining and family gatherings.Step into the kitchen, where contemporary finishes and generous counter space make meal preparation a delight. The kitchen flows effortlessly into the living area, which boasts a striking wood-beamed ceiling and large windows that fill the space with natural light. A cozy fireplace adds warmth and character, making it perfect for relaxation.The primary bath is a true sanctuary, featuring a freestanding soaking tub, dual vanities, and a beautifully tiled walk-in shower designed for comfort and elegance. You'll appreciate the sleek design and thoughtful storage solutions.Located in a desirable subdivision with lake access, this home offers a tranquil living environment and opportunities for outdoor activities.Embrace the serene surroundings and community amenities that make this area truly special
Features
Patio
Washer Connection
Dryer Connection-Electric
Smoke Detector(s)
Walk-In Closet(s)
Ceiling Fan(s)
Walk-in Shower
This data up-to-date as of December 16, 2025 time - 06:58 AM. For the most current information, contact Landry Greers Ferry Lake Realty, (501) 884-4663, tammy@landrylakerealty.com. This data is updated daily. Some properties which appear for sale on this web site may subsequently have sold and may no longer be available.
The data relating to real estate for sale on this web site comes in part from the Broker Reciprocity (SM) Program of the Cooperative Arkansas REALTORS® Multiple Listing Services, Inc. Real estate listings held by brokerage firms other than Studio 11 Productions are marked with the Broker Reciprocity (SM) logo and information about them includes the name of the listing brokers. Broker Reciprocity (SM) information is provided exclusively for consumers' personal, non-commercial use and may not be used for any purpose other than to identify prospective properties consumers may be interested in purchasing.
Information deemed reliable but not guaranteed. Listing broker has attempted to offer accurate data, but buyers are advised to confirm all items.
Copyright © 2002 - 2025 Cooperative Arkansas REALTORS® Multiple Listing Services, Inc. All rights reserved.
